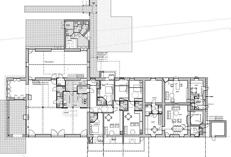
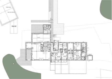
Les bâtiments
Hébergement : (projet actuel, à revoir en fonction des demandes)
• 6 logements une chambre (2 pièces) pour aînés (éventuellement en « time-sharing »)
• 2 ou 3 chambres « single » pour enfants permanents (accueil) ou réguliers (parrainage),
• 3 à 6 logements familiaux 1 à 3 chambres : coopérateurs ou habitants actifs (intendant, responsable matériel, responsable du site et travailleurs divers dans la structure ou ailleurs),
• 4 chambres doubles individuelles (accessibles handicapés) en gîte,
• 3 ou 4 chambres collectives pour 2 à 4 enfants ou ados en gîte,
• 1 ou 2 dortoirs (événements artistiques, classes vertes, randonnées...),
• 1 gîte 1 chambre (2 pièces) pour parents, amis, aides temporaires ou location,
• 1 gîte 3 chambres (4 pièces) pour parents, amis, aides temporaires ou location,
• 2 ou 3 studios d’artistes,
Autres locaux principaux :
• Une grande cuisine semi professionnelle,
• Une grande salle à manger et une vaste terrasse couverte,
• Un grand salon - coin feu,
• Une bibliothèque,
• Un fumoir (bien ventilé)
• Une salle polyvalente : fêtes, spectacles, conférence, sport d’intérieur, expositions, banquets… et ses annexes,
• Une salle commune de jeux (en communication avec les logements enfants),
• Un bureau d’administration et centre de télétravail avec petite salle de réunion,
• Un atelier d’art plastique, un atelier de bricolage et sculpture,
• Locaux de service : buanderie, réserves, chaufferie, garage 3 voitures, four à pain …
• Locaux agricoles : étable, écurie, bergerie, poulailler, grange, hangars, serre…
Aménagements extérieurs :
• Une piscine bio et ses annexes, un étang de pêche, petits parkings arborés.
• 6 logements une chambre (2 pièces) pour aînés (éventuellement en « time-sharing »)
• 2 ou 3 chambres « single » pour enfants permanents (accueil) ou réguliers (parrainage),
• 3 à 6 logements familiaux 1 à 3 chambres : coopérateurs ou habitants actifs (intendant, responsable matériel, responsable du site et travailleurs divers dans la structure ou ailleurs),
• 4 chambres doubles individuelles (accessibles handicapés) en gîte,
• 3 ou 4 chambres collectives pour 2 à 4 enfants ou ados en gîte,
• 1 ou 2 dortoirs (événements artistiques, classes vertes, randonnées...),
• 1 gîte 1 chambre (2 pièces) pour parents, amis, aides temporaires ou location,
• 1 gîte 3 chambres (4 pièces) pour parents, amis, aides temporaires ou location,
• 2 ou 3 studios d’artistes,
Autres locaux principaux :
• Une grande cuisine semi professionnelle,
• Une grande salle à manger et une vaste terrasse couverte,
• Un grand salon - coin feu,
• Une bibliothèque,
• Un fumoir (bien ventilé)
• Une salle polyvalente : fêtes, spectacles, conférence, sport d’intérieur, expositions, banquets… et ses annexes,
• Une salle commune de jeux (en communication avec les logements enfants),
• Un bureau d’administration et centre de télétravail avec petite salle de réunion,
• Un atelier d’art plastique, un atelier de bricolage et sculpture,
• Locaux de service : buanderie, réserves, chaufferie, garage 3 voitures, four à pain …
• Locaux agricoles : étable, écurie, bergerie, poulailler, grange, hangars, serre…
Aménagements extérieurs :
• Une piscine bio et ses annexes, un étang de pêche, petits parkings arborés.